Aménager un grand espace peut poser des problèmes d’acoustique et d’échelle que bien souvent seul un architecte est en mesure de résoudre. Illustration avec un projet hors-normes de l’architecte Alexandre Subra.
À 20 km au nord-est de Toulouse, sur une grande parcelle isolée, un couple a rénové une longère du XIXe siècle puis l’a agrandie voilà bientôt 10 ans. L’extension de 125 m² en structure métallique prolonge horizontalement tout le volume de la bâtisse. De ce volume immense, non cloisonné, avec une hauteur sous faîtage de 5,80 m, ont découlé à l’usage des problèmes d’acoustiques et d’écho. En outre, l’ameublement d’une telle pièce s’est révélé être un véritable casse-tête pour ses propriétaires. En 2016, ils se décident à confier son aménagement à un professionnel. Lorsqu’ils contactent le Toulousain Alexandre Subra, double casquette, architecte DPLG et architecte d’intérieur, ils comptent sur lui pour réorganiser et aménager cet espace en entrée et pièce de vie et régler les problèmes d’acoustiques.
Alexandre Subra se souvient de sa première visite de l’extension :
« Les propriétaires n’avaient pas anticipé ce que représente un grand volume habitable. Ils ne l’avaient pas meublé à l’échelle. La salle à manger se retrouvait dans un coin, le carrelage pourtant en 60x60cm paraissait mesurer 30x30cm. La pièce manquait de chaleur et d’âme ».
Au sol, la moquette effet velours joue avec la lumière.
Espace salon. Le plafond suspendu au-dessus du salon est constitué de deux plaques d’OSB peintes en noir mat formant un sandwich, de sorte que la périphérie du plafond donne l’effet d’un IPN. En son centre, une réservation reçoit un rail de spots encastrés. Cela confère légèreté, dissymétrie et un style résidentiel. Suspension Gregg de Foscarini et lampadaire géant Toloméo XXL d’Artemide. Au centre du salon, deux tables basses identiques accolées achetées chez Tryptik Design (Albi).
Au-dessus de la table, les supensions mesurent un mètre de haut.
Cuisine et salle à manger démesurées. Dans la cuisine, plan de travail en granit noir flammé avec façades des éléments en verre sablé. Au-dessus, un puits de lumière dont le cône est peint en noir accueille un lustre Starck. En périphérie, des spots assurent un éclairage complémentaire. Sur-mesure, la table de la salle à manger en Krion® a l’épaisseur d’une feuille. Ses pieds sont légèrement courbés. On la doit au menuisier Jean-Louis Gabarroca de Montjoire (31), tout comme l’îlot central, les meubles de cuisine, les meubles sous escalier… L’architecte apprécie énormément le travail de cet artisan : « Il travaille dans les règles de l’art. Son travail est soigné, exécuté avec beaucoup de finesse, jusque dans les moindres détails ». Autour de la table de la salle à manger, chaises Zartan de Starck (Tryptik Design, Albi). L’abat-jour des suspensions dessinées par l’architecte mesure Ø0,80x1m (réalisé par la société Abat-jours de Roubaix).
L’acoustique, principal problème à régler.
D’abord, deux grands murs sont revêtus de panneaux décoratifs en bois perforé (Oberflex), doublés d’un complexe en laine de roche. La performance d’absorption acoustique est excellente.
Dans l’espace salon, un plafond de 20 m² suspendu par des câbles en acier abaisse la hauteur sous plafond à 2,80m. Cela diminue l’effet de résonnance. Idem pour la moquette Vorwerk incrustée dans le sol du salon. Canapés et fauteuils sont en textile et non en cuir. Enfin, un mur végétal lyophilisé participe au traitement de l’acoustique.
Après cela, les propriétaires reconnaissent que le problème est résolu. « Le son de la télévision est canalisé. Il n’y a plus d’écho dans la pièce. »
Derrière la télévision, un mur végétal lyophilisé.
Lyophilisé. Le mur végétal est sans entretien. Les plantes, des vraies, sont lyophilisées. Nul besoin de les arroser, elles sont figées tout en gardant leur souplesse. On le doit à la société montpelliéraine Élément végétal. Il en va de même pour l’olivier dans le pot lumineux Serralunga. Brise-soleil orientables Griesser.
Aménager l’espace à l’échelle.
Pour réduire l’impression d’espace, Alexandre Subra divise les espaces par fonction. Le salon est délimité par son plafond suspendu et sa moquette. Le sol de la salle à manger, de la cuisine et du cellier est blanc (38 m²) quand celui du reste de l’extension est gris chaud.
Plafond et murs sont peints en blanc mat. Sol en béton fibré de 6 mm d’épaisseur compatible avec le plancher chauffant existant, réalisé par La Boutique du béton ciré (Toulouse) dont l’architecte a apprécié le travail. Tout comme celui du plaquiste Plâtre & Co (Lavaur), dont il a été très content. La finition du béton au sol est voulue superficiellement polie pour conserver un effet tendant vers le mat permettant une accroche de la lumière assez douce et chaleureuse.
La cheminée existante prend une nouvelle dimension. Le conduit est caché par une reprise du mur sur la hauteur. Sur le côté, une niche sert à ranger le bois de chauffage.
Aux baies vitrées, des lames en alu orientables et réglables de style persienne sont installées. Elles sont invisibles une fois réunies dans le linteau.
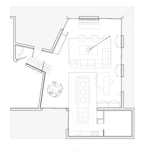
Plan de l’extension : cellier, cuisine, salle à manger, salon, vestibule d’entrée.
À l’issue de ces travaux, les propriétaires ont été à ce point satisfaits qu’ils ont confié à Alexandre Subra de nouvelles missions : « des aménagements intérieurs et extérieurs, et la création d’une dépendance résolument contemporaine à faire conjuguer avec le corps du bâti existant ».
Enregistrer
Enregistrer
Enregistrer
Enregistrer
Enregistrer
Enregistrer
Enregistrer
Enregistrer
Enregistrer
Enregistrer
Enregistrer
Enregistrer
Enregistrer
Enregistrer
Enregistrer
Enregistrer
Enregistrer
Enregistrer
Enregistrer
Enregistrer
Enregistrer
Enregistrer
Enregistrer
Enregistrer
Enregistrer
Enregistrer
Enregistrer
Enregistrer
Enregistrer
Enregistrer
Enregistrer
Enregistrer
Enregistrer
Enregistrer
Enregistrer
Enregistrer
Enregistrer
Enregistrer
Enregistrer
Enregistrer
Enregistrer
Enregistrer
Enregistrer





